Hemlock Wine Bar
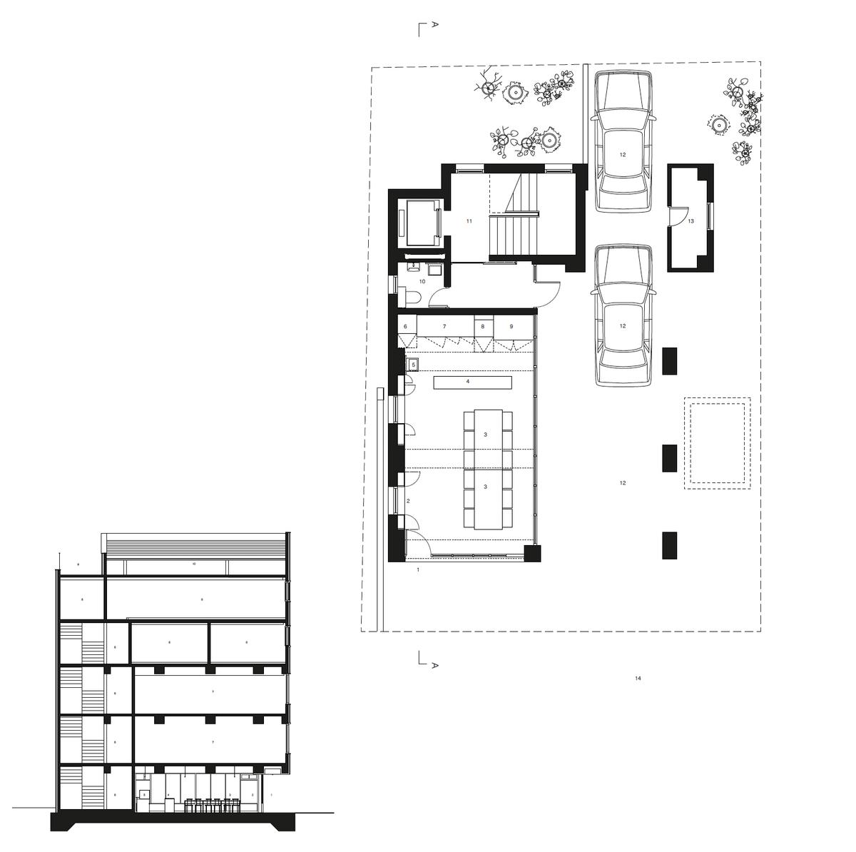
Hemlock was a natural wine bar in Seoul, created by transforming an unused ground floor car park into a warm and communal gathering space.
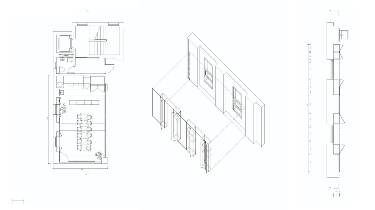
The project reimagined a forgotten site as a convivial interior, where craft, reuse, and contemporary design came together. At the centre of the layout was a bespoke communal table, designed as the heart of the space and encouraging connection among guests. At the far end, a modest bar and kitchen supported the atmosphere with food and drink service.
From Void to Social Fabric
Hemlock demonstrated how adaptive reuse could generate intimacy and community. By converting a car parking lot into a wine bar, the project showed how overlooked urban voids could be reprogrammed into social infrastructure.
Crafting Atmosphere
The design relied on close collaboration with local artisans, whose woodwork and joinery shaped the bar’s atmosphere. The wooden fixtures and furniture combined traditional techniques with contemporary detailing, giving the space both authenticity and warmth.
Convivial Transformations
Hemlock Wine Bar was a testament to the creativity of repurposing forgotten spaces. It invited guests not only to enjoy natural wine, but to inhabit a space that celebrated craft, conviviality, and transformation within the city’s fabric.

